Дом по адресу Москва, деревня Дятловка, за 16800000 р.

Адрес Москва, деревня Дятловка, 317
Цена 16 800 000 р.
Площадь дома 194 м2, участка 6 м2
Кол-во комнат 7
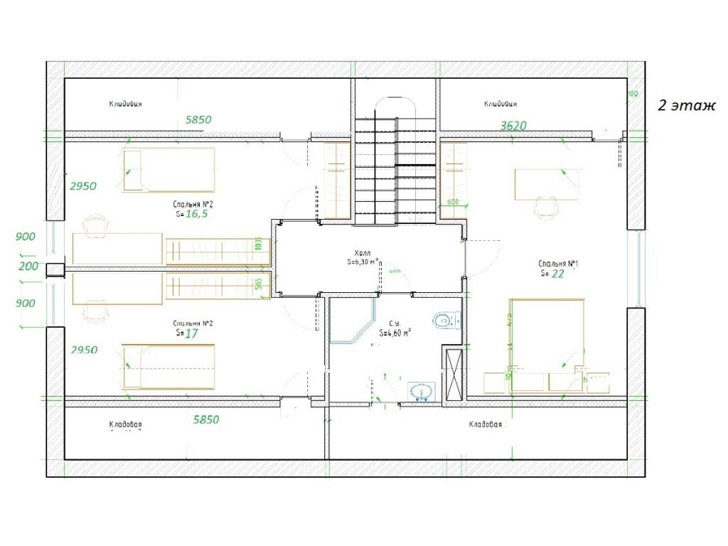
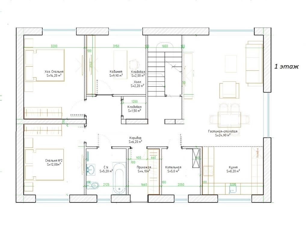
От застройщика! Новый 2-х этажный коттедж 194 кв.м на участке 6 соток в КП «Новая Дятловка». Семейная и IT ипотека - 6%. Специальные условия для многодетных семей и участников СВО! Планировка по проекту: 1 этаж: Просторная кухня-гостиная 33 кв.м с окнами на три стороны света и панорамной дверью на крытую террасу; три комнаты (10/12/14 кв.м), ванная комната, бойлерная, гардеробная, прихожая. Высокие потолки- 3 метра. 2 этаж: Три спальни (17/16/22), с/у с душевой, много мест для хранения. Потолки - 3 метра. Дом без внутренней отделки. Коммуникации: Электричество и магистральный газ заведены на участок. Земельный участок: 6 соток, ровный, правильной формы, перед домом предусмотрено место для парковки 2-х авто. Забор - металлический штакетник высотой 2м. Назначение - ИЖС. Прописка - деревня Дятловка, г.о. Балашиха. Без проблем прикрепиться к садику, школе, поликлинике. Технологии и материалы: - Фундамент: Свайный с ростверком (монолитный с армированием). Буронабивные сваи с заглублением 3м; - Стены: Газобетонный блок Бонолит, толщина внешних стен 400мм; - Фасад: Штукатурка, покраска, фасадный декор; Цоколь утеплен и облицован термопанелями; выполнена отмостка; - Кровля: Двухскатная из метало-черепицы с установкой снегозадержателей и водосточной системы; - Окна Melke: Металло-пластиковые двухкамерные стеклопакеты с поворотно-откидным механизмом и французским балконом с кованным ограждением на 2-м этаже; - Крыльцо с навесом; - Входная металлическая дверь. О поселке: Асфальтированные дороги. Общее освещение. Закрытая территория. В поселке оборудована детско-спортивная площадка с воркаутом и зоной отдыха Чистый и свежий воздух, удаленность от трасс и многоэтажек,тишина и уединение с природой и при этом оптимальное расстояние до города- всего 3 км от мкр. Железнодорожный и 17 км от МКАД (м. Новокосино). Инфраструктура: Все поблизости: Детский сад, школа, амбулатория, парк, банк, почта, спортивный комплекс с плавательным бассейном в Агрогородке - 10 мин на авто/автобусе. В д.Дятловка расположена остановка школьного автобуса, где утром забирает, а после уроков привозит ребят школьный автобус. В шаговой доступности Вкус Вилл, Пятерочка, пункты Яндекс/Озон/Валдбериз, аптека и тд. ТЦ, рестораны, кафе, сетевые магазины и другая социально-бытовая инфраструктура расположена в городе Железнодорожном - 15 мин. на авто. Как добраться: От коттеджного поселка до остановки автобуса 10 минут пешком. Автобус №26 идет до ж/д станции "Черное"- 10 минут, до ж/д станции "Железнодорожная" - 20 минут. Открыт участок автомобильной трассы М12 Москва-Ногинск, легкое метро МЦД-4 (от Апрелевки до Железнодорожного), что значительно сокращает время в пути. Прямая продажа от застройщика. Вся стоимость в договор. Одобрение ипотеки и сопровождение сделки - бесплатно. Семейная и IT ипотека - 6%. Индивидуальная рассрочка до 12 месяцев. При 100% оплате - скидка. Добро пожаловать в Новую Дятловку!
Объявление № 21988984
Дата подачи:
25 апреля 2025 г. 23:47
Дата обновления:
25 апреля 2025 г. 23:47
Просмотров 22 Хотите продать быстрее?

Продавец
Пугачева Мария Игоревна
Показать номер телефона
Пожаловаться
Комментарии:
Добавить